748 Traditions Crescent
$
1699999
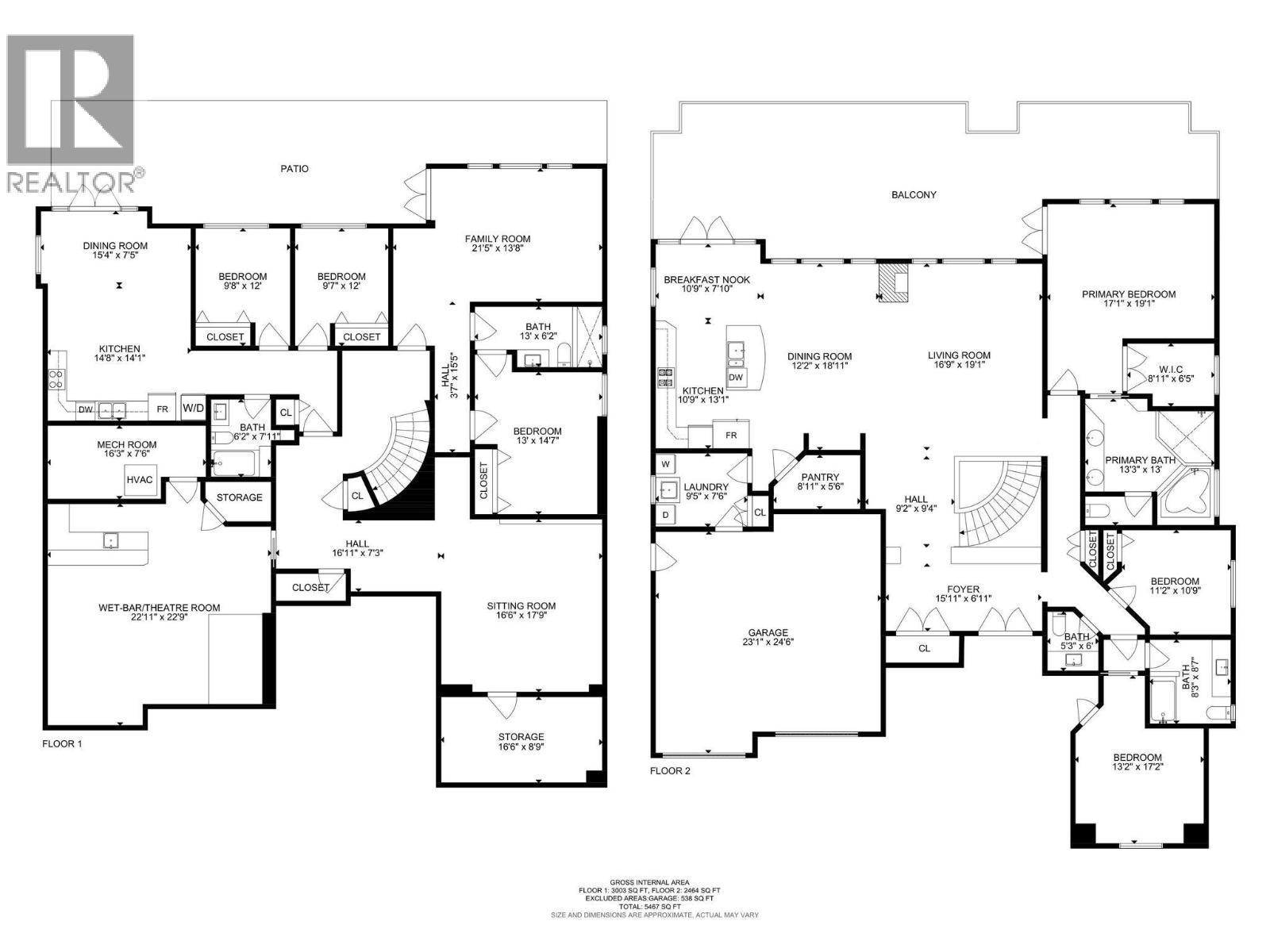
This stunning custom-built home in the Glenmore area offers the ultimate in luxury living and investment potential. Featuring 6 bedrooms, 5 bathrooms, and over 5,800 sq ft of meticulously designed living space with 2 separate suites, this property is perfect for multi-generational living or income generation. The open-concept main floor features soaring 18-foot vaulted ceilings and walls of windows that flood the space with natural light while showcasing unobstructed panoramic views of the lake, mountains, and city. The gourmet kitchen is a chef's dream with stainless steel appliances including a 6-burner gas range, massive island with granite countertops, and elegant cherrywood cabinetry. Entertain in style in the dining and living areas featuring a cozy gas fireplace, or step out onto the massive 40-foot deck to soak up the sun and savor the views. The oversized primary bedroom features a walk-in closet and a spa-like 5-piece ensuite with heated floors. In the basement, discover a full media room with wet bar, spacious family room, wine cellar, and ample additional storage. The lower level includes two separate suites, each with independent entrance and parking, a fully contained 2-bedroom suite in one wing and a 1-bedroom in-law suite in the other. Additional highlights include parking for 4+ vehicles plus RV/boat storage, steps to Knox Mountain hiking and biking trails, less than 5 minutes to downtown Kelowna, and close proximity to shops and restaurants. (id:62999)








































































