1531 Olive Pond Place
$
1649000
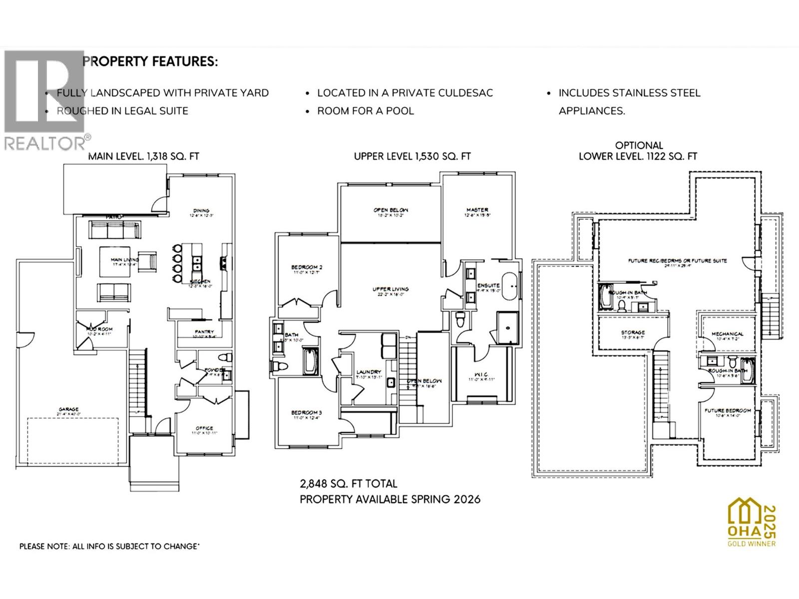
Welcome to this brand new 3,970 SqFt home in Hidden Hills, designed and constructed by AuthenTech Homes. A blend of timeless style and modern function within Kelowna’s premier Wilden community. The exterior makes an impressive first impression, the main level is complete with soaring high ceilings, a dedicated home office, and a beautiful kitchen featuring a walk in pantry and stainless steel appliances. The upper floor hosts three spacious bedrooms, a secondary upper living area, and a convenient laundry room. The primary suite is a retreat, complete with a walk-in closet and a luxurious ensuite. For added flexibility, the 1,122 square foot lower level comes fully roughed in for a legal suite or extra recreation space. Situated in a private cul-de-sac, this property features a triple car garage with tandem parking and a fully landscaped yard with ample room for a pool. Enjoy life steps away from serene trails, parks, and top rated schools (id:62999)


















