1435 Cara Glen Court Unit# 129
$
738000
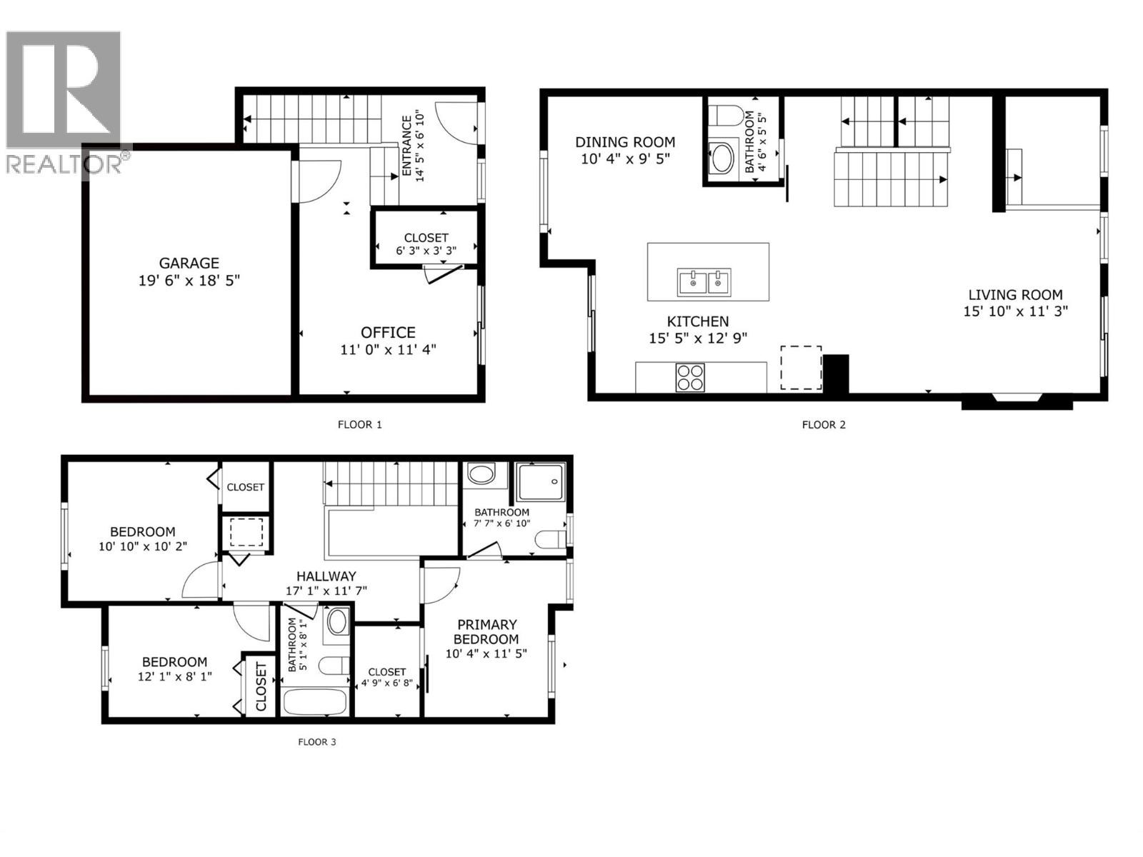
Tucked away in family-friendly Glenmore, this beautifully maintained three bedroom plus den, two and a half bath townhome offers the perfect blend of comfort, functionality, and lifestyle. Positioned away from Clifton and Cara Glen Court, this home enjoys a peaceful setting while backing directly onto the complex’s green space—ideal for relaxing, entertaining, or keeping an eye on the kids from your private patio, complete with a gas hookup. The thoughtfully designed layout features a bright multi-use flex room on the lower level—perfect as a home office, gym, or guest space—with large windows and direct access to the green area and entry. The main living area extends seamlessly to a covered deck and spacious terrace, creating a calm outdoor retreat. Upstairs, the main suite captures beautiful mountain views, adding to the home’s tranquil feel. Pride of ownership shines throughout—this four year-old home is in excellent condition, smoke-free and pet-free since new. A rare highlight is the oversized driveway with parking for two full-sized vehicles in addition to the double garage—an uncommon and highly convenient feature in the neighbourhood. An exceptional opportunity to own a quiet, well-located home in one of Kelowna's most desirable communities. Wonderful location! Only minutes from Costco, Orchard Park Shopping Centre, Downtown Kelowna, the Cultural District, Parks and Beaches, UBCO, the Airport, and more, but away from the hustle and bustle of town. (id:62999)











































