885 Camelia Road
$
898000
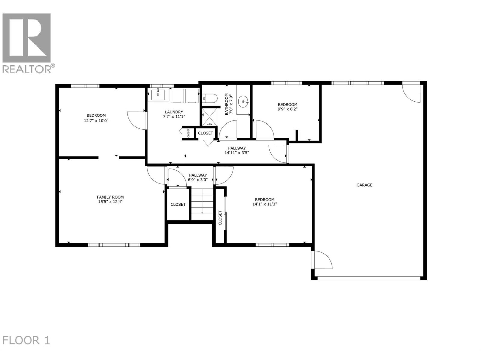
Welcome to this great family home with INGROUND POOL & WATERSLIDE nestled on a quiet street, just steps from schools, shopping & local amenities. This property boasts a private, south-facing backyard oasis, featuring a 18x36 pool with a new pump (2025) & a custom-built waterslide for endless summer fun. Outdoor living is elevated by the large yard, a covered deck w/Duradek & sleek glass railings, fiberglass stairs & a new shed, fence & gate. Inside, discover a bright kitchen w/newer appliances & a spacious living/dining room designed for seamless family time. Conveniently located on the main floor are two good sized bedrooms & a full bath. The basement, with three bedrooms, laundry room & full bath, has been thoughtfully enhanced w/double-layer drywall soundproofing & insulation, ensuring a serene environment. Additional features include a brand new HWT, new waterproof vinyl plank flooring in laundry area/hallway, 2019 roof & an oversized 12x27 single garage equipped w/220V workshop, automatic overhead door & a unique rear lift door for backyard access. With ample parking PLUS dedicated RV/Boat parking, this is a rare opportunity to own a spacious home w/pool in a fantastic family-friendly neighbourhood. Within walking distance to Quigley Elementary, Mission Creek & Belgo Parks & Transit. Close to Springvalley Elementary/Middle Schools & Rutland Elementary, Middle & High Schools! (id:62999)
















































