575 Stirling Road
$
749000
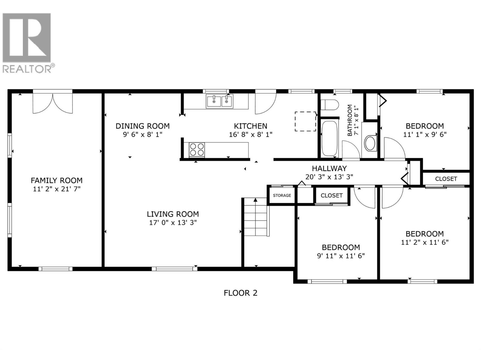
Looking for a solid home with an outdoor space that truly stands out? this is the one. Situated on a large lot, this property is a great find for families, first time buyers, or savvy investors looking to build sweat equity in a good neighborhood. • The backyard is the star of the show. Imagine summer fun and year round relaxation! Enjoy the sparkling pool and gazebo during a warm summer BBQ with friends and family. Bask in the warmth of the hot tub just off your large patio on cooler evenings or snowy winter days. In the spring, grow your own veggies and strawberries in the raised garden beds. You'll appreciate abundant storage for all of your gardening tools in the spacious shed in the back yard. This yard provides plenty of space for the whole family to run around. Lots of parking is a further bonus, the whole family can park in the driveway, or you can easily store your RV or boat. • While perfectly livable today, this home is a golden opportunity to add your creative flair. This home offers a fantastic layout and is just waiting for your creative updates to make it sparkle. A perfect opportunity to customize your living space and add immediate value. Move in now and upgrade at your own pace! Bring your vision, your tools, and your passion! Homes with this land and these amenities at this price point do not last. Come and see for yourself! (id:62999)







































